Martine Ramat: monuments historiques de votre architecte DPLG aux alentours de Tours en Indre-et-Loire (37)
Hôtel de Ville, Saint-Calais, Sarthe
En 1892 la Caisse d’Epargne fait construire une succursale, à proximité de la halle aux grains, qui deviendra plus tard l’Hôtel de Ville de la commune....
Eglise Saint-Georges, Descartes, Indre-et-Loire
L’église Saint-Georges, située dans la commune de Descartes en Indre-et-Loire (37), est un édifice presque millénaire. Construite au XIIe siècle,...
Tour de l’Horloge, Beaugency, Loiret
La tour de l'Horloge, connue autrefois sous différents noms, appartient par sa construction au Moyen Âge, sans qu'on puisse en préciser la date. Localisée au nord...
Abbaye Saint-Georges, Saint-Martin-des-Bois, Loir-et-Cher
Saint-Martin-des-Bois est situé à une vingtaine de kilomètres au sud-ouest de Vendôme. L’abbaye Saint-Georges se trouve à l’entrée du village....
Anciennes écuries du château de Montreuil-Bellay, Maine-et-Loire
Les dimensions du bâtiment, sa morphologie, ses aménagements intérieurs, sa situation au sein de la basse-cour à proximité de la rivière, etc. sont autant...
Eglise Saint-Martin, Semur-en-Vallon, Sarthe
La petite commune de Semur-en-Vallon est située au cœur du Pays du Perche sarthois, sur les franges nord du plateau calaisien, entre les vallées du Loir et de L’Huisme....
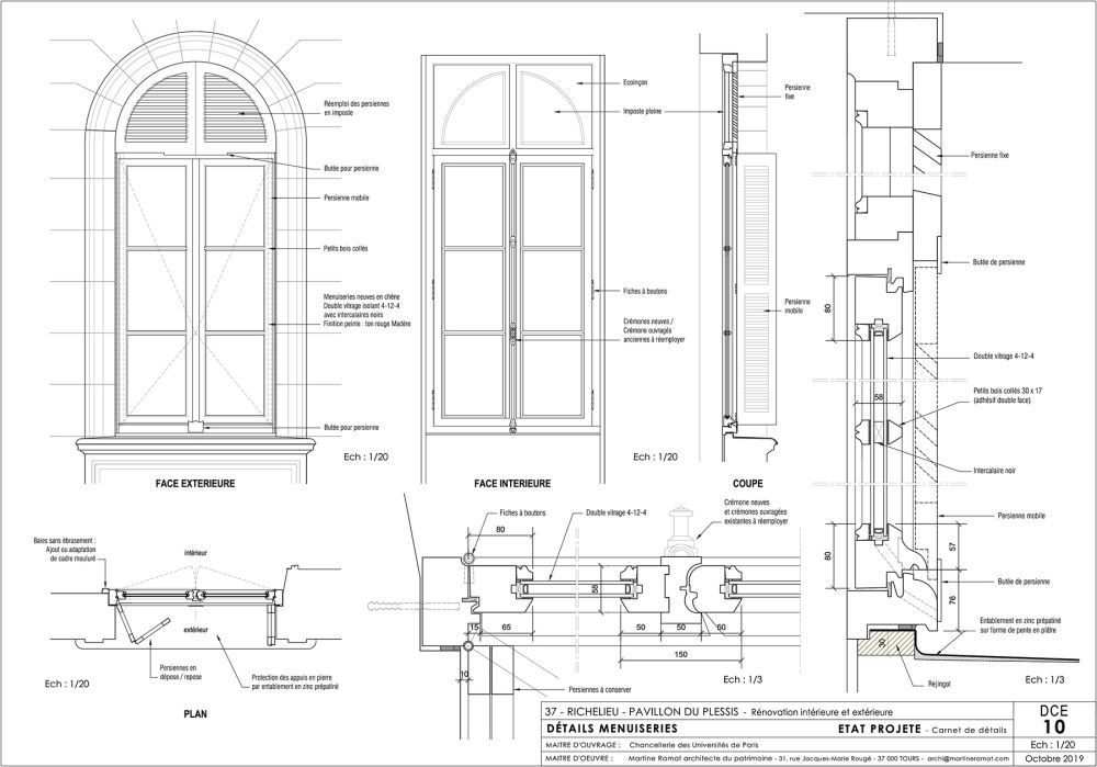
Pavillon du Plessis, Domaine de Richelieu, Indre-et-Loire
En 1852, Jean Henri-Hyacinthe Laurance (1799-1861) rachète le domaine de Richelieu et quelques parcelles du parc afin de reformer l’ancien domaine de Richelieu. C’est lui qui, vers...
Eglise Saint Julien et Saint Pierre, Lavenay, Loir-en-Vallée, Sarthe
L’église Saint-Julien et Saint-Pierre de Lavenay se situe en haut d’un coteau de la vallée du Loir, en limite sud de la Sarthe. Le bourg fait aujourd’hui partie de...
Eglise Saint-Gilles, L'île Bouchard, Indre-et-Loire
Classée monument historique Une 1ère tranche de travaux relative à la restauration du clocher s’est achevée en 2019 sous la direction de l’architecte Bertrand...
Forteresse de Loches, Indre-et-Loire Restauration des remparts
Classée monument historique La forteresse de Loches, qui s’étend sur plusieurs hectares, constitue un des principaux vestiges de l’architecture militaire du Moyen Âge....











































































































